О теплоходе "Стерх"
Разработан и построен в 2014 г. по индивидуальному проекту учитывающему максимально комфортное размещение и отдых на теплоходе как во время коротких маршрутов так и продолжительного путешествия по Байкалу. Емкость топливных баков позволяет находиться в плавании до 20 суток без дозаправки.
Параметры теплохода:
длина - 20 м;
ширина - 3.8 м;
осадка - 160 см
Пассажировместимость:
До 12 человек.
Комфортное размещение до 10 человек
Экипаж (команда) - 3 человека:
- Капитан,
- Помощник капитана - механик,
- Кок
Машинное отделение расположено в средней части корабля и отделано современными шумоизоляционными материалами.
Теплоход оснащён двигателем "Yamaha" в судовом исполнении мощностью 300 л/с.
Энергообеспечение:
теплохода комплексное, что позволяет исключить перебои электроэнергии.
- Дизель-генератор "Yamaha" (мощность 10 кВт)
- Дизель-генератор "Yamaha" ( мощность 5 кВт)
- Инвертор МАП 24/220 (мощность 9 кВт)
- Инвертор- преобразователь (мощность 3 кВт
- Валогенератор
Радионавигационное оборудование:
- КВ - радиостанция;
- УКВ - радиостанция;
- Спутниковый телефон;
- Локатор "Garmin"
- GPS - навигатор
- Эхолот
Спасательные средства:
Теплоход укомплектован как коллективными, так и индивидуальными спасательными средствами в соответствии с правилами и нормами судоходства.
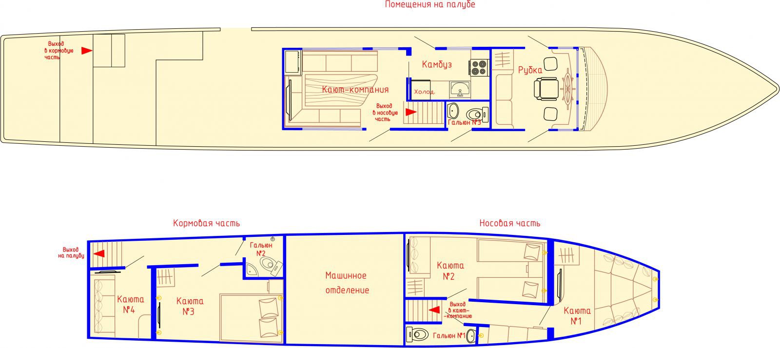
Расположение и описание кают и помещений.
На теплоходе "СТЕРХ" находятся 4 каюты, 2 из которых находятся в носовой части и 2 каюты в кормовой части корабля.

Носовая часть
Каюта №1:
Большая двухместная кровать, шкаф для одежды, тумбочка для радиоаппаратуры и разных мелочей, ТВ ЖК - панель, DVD, soundbar, сабвуфер.

Каюта № 2:
Большая двухместная кровать (при необходимости трансформируется на две одноместные), кресло- кровать, шкаф для одежды, ТВ ЖК - панель.

Коридои носовой части.
.jpg)

Сан.узел 1: гальюн, раковина, душевая
.
Кормовая часть:
Каюта №3:
Большая двухместная кровать, кресло-кровать, шкаф для одежды, ТВ ЖК - панель.
Каюта №4:
Двухместная кровать - диван, ТВ ЖК - панель.
Сан. узел № 2: гальюн, раковина, душевая.
Верхняя палуба
Рубка ( служебное помещение )
Кают-компания (место для приема пищи, посиделок, пения караоке, обмена впечатлениями): ТВ ЖК - панель, караоке, акустическая система 5:1,


Камбуз (кухня) - отдельное помещение, максимально оборудованное бытовой техникой, посудой для приготовления и приема различных блюд.
Сан. узел №3 (гальюн, раковина, душевая)
Вход в машинное отделение ( служебное помещение)
На борту теплохода имеются:
- снасти и рыболовные принадлежности для ловли хариуса, омуля, соровой рыбы (щуки, окуня, сороги)
- дополнительная морозильная камера для хранения как продуктов, так и пойманной Вами рыбы
- резиновая моторная лодка
- мангал, шампуры, казан, коптильня
